株式会社古本建築設計サイト
furumotoarchitectassociates

REFORM

「re・フォルム」

間取りを変えたり、設備をアップデートするだけじゃもったいない。
目の前にあるココを、習慣や既成概念というバイアスを取っ払い、フラットな視点で見直してみる。場所の骨格は動かしようのない状下でも、隠れていた魅力、可能性が、ちょっとの補完、発想のシフトで空間を劇的に変化させたりする。

心地よい自分スタイルのフォルム。クリエイティブにそのヒントを見つけ出そう。

2020/7 「re・フォルム」マンションの水廻りで風通しを良くする

マンションであっても風通しは良くありたい。とりわけ水廻りが住戸のコア部分、つまり、外窓が作れない場所にあったらどうする?
ならば、内窓を作ってしまおう、という至ってシンプルな発想。
住まい全体に風がたおやかに流れ出す。

img20200610123712822003.jpg img20200611165658444293.jpg img20200611165658531075.jpg img20200611165658264106.jpg img20200611165658264106.jpg img20200611165649800318.jpg img20200611165658264106.jpg img20200611165658531075.jpg

2020/6 「re・フォルム」テレワークスペースを考える

限られた面積からワークスペースを捻出する。切り出された「それなりの個室」もありだけれど、空間の硬直化が生じがち。
日常のオンとオフ。フレキシブルに変容するスペーシング、「コーナー」「ゾーニング」という捉え方はどうだろう。
空間の”たまり”が実は心地好かったもする。

img20200610182521079785.jpg img20200610182521079785.jpg img20200610182521079785.jpg img20200610182521216295.jpg img20200610182521414533.jpg img20200610182521119229.jpg img20200610182521079785.jpg

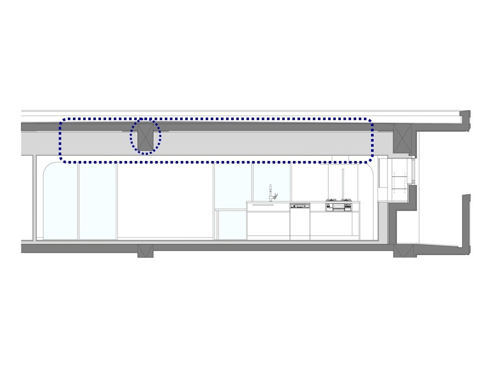
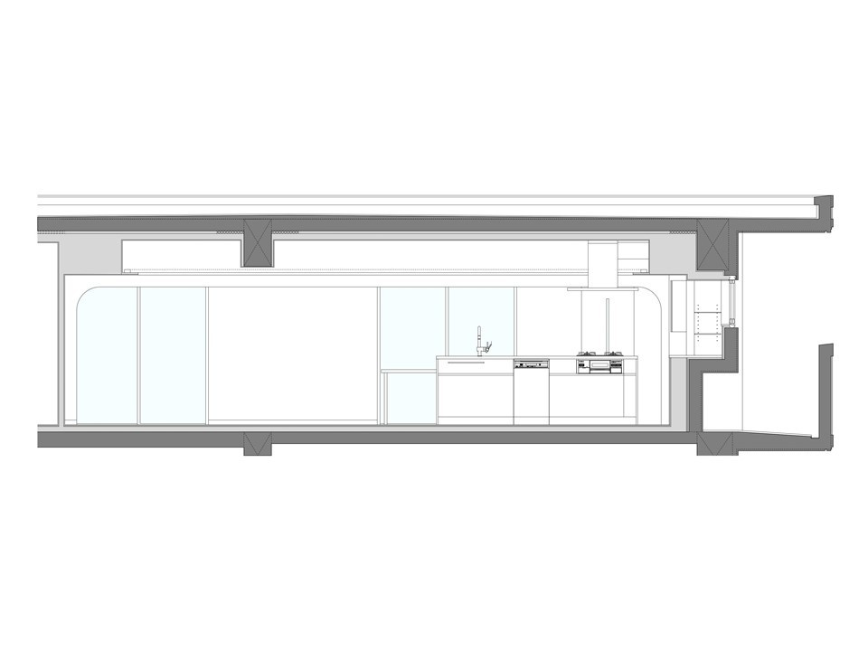
2020/6 「re・フォルム」 マンションの天井を高くするには

「内壁の移動」、つまりマンションリフォームで間取りの変更は実にポピュラー。では、開放感、場の展開、といった「空間の質」を変えることはできるだろうか。
全体容量を増やすことは住戸の集合体という建物構造上、難しい。であれば、天井を操作してみてはどうだろう?
柱・梁に手を加えずとも、天井を高くできるケースもあるのです。

img20200611113607825406.jpg img20200616131922458446.jpg img20200616131927370219.jpg img20200610175822731459.jpg img20200611113607825406.jpg img20200610123713361228.jpg img20200610123713472910.jpg img20200610123713546544.jpg img20200610175823016240.jpg img20200611113607825406.jpg

 

[%article_date_notime%]  [%new:NEW%] [%category%]

[%lead%]

[%title%]

[%article_short_65%]